物件価格
月々のお支払い例
1,659.77円
※金利1.20% 借入金額:物件価格、借入期間35年
物件の特徴
主な設備
電気
公営水道
公共下水
都市ガス
給湯
コンロ三口
グリル
ガスコンロ付
カウンターキッチン
システムキッチン
オープンキッチン
バス
オートバス
追焚機能
浴室暖房
浴室乾燥機
浴室に窓
トイレ
トイレ2箇所
温水洗浄便座
室内洗濯機置場
洗面所独立
床暖房
リビング階段
モニタ付インターホン
火災警報器/報知機
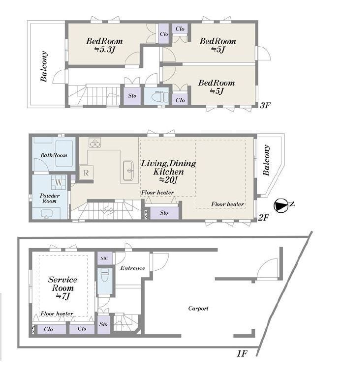
LDK20畳以上
2面採光
全室2面採光
フローリング
全室フローリング
シャッター雨戸
24時間換気システム
クローゼット
クローゼット3箇所
納戸
全居室収納
シューズボックス
両面バルコニー
主な特徴
耐震構造
2沿線利用可
小学校徒歩10分以内
前道6m以上
緑豊かな住宅地
閑静な住宅街
周辺交通量少なめ
市街地が近い
都市近郊
眺望良好
通風良好
陽当り良好
3階建以上
前面棟無
平坦地
フラット35Sに対応
《Access》
・大井町線「尾山台駅」歩14分
・東横線・大井町線「自由が丘駅」歩20分
《Point》
・2023年9月築の築浅物件♪
・3SLDK+電動シャッター付カースペース
・LDK約20帖の広々とした空間
・足元ぽかぽか床暖房完備
・全室2面採光 日当たり・通風良好
・各所収納豊富
・両面バルコニーあり♪
・食洗機、浴室乾燥、温水洗浄便座・・・設備充実
■お気軽にお問い合わせください♪
物件概要
| 価格 | 1億4,980万円 | 間取り | 3LDK+S |
|---|---|---|---|
| 物件種別 | 中古一戸建て | ||
| 所在地 | 東京都世田谷区等々力7丁目 | ||
| アクセス | 東急大井町線『尾山台』 徒歩14分 (約1120m) 東急東横線『自由が丘』 徒歩20分 (約1600m) 東急大井町線『自由が丘』 徒歩20分 (約1600m) |
||
| 建物面積 | 公106.31㎡ | 駐車場 | あり 普通:1台 |
| 築年月 | 2023年(令和5年)09月築 | ||
| 建物構造 | 木造 3階建 | 工法 | |
| 主要採光 | 北向 | バルコニー | |
| 保証・評価 | |||
| リフォーム | |||
| 土地面積 | 公70.1㎡(21.20坪) | 接道 | 北側(公道)幅 約8.0m 間口 約5.90m |
| 私道 | セットバック | ||
| 地目 | 宅地 | 地勢 | 平坦 |
| 権利 | 所有権 |
||
| 都市計画 | 市街化区域 |
用途地域 | 1種低層 |
| 建ぺい/容積率 | 60% / 150% | 土地国土法 | |
| 許可番号 | 建築基準法 | ||
| 法令制限 | |||
| 小学区 | 等々力小学校 徒歩8分 (約570m) | 中学区 | 東深沢中学校 徒歩10分 (約780m) |
| 現況 | 居住中 | 引渡 | 期日指定:2026年02月上旬以降 |
| その他費用 | |||
| 周辺環境 | 紀ノ国屋等々力店 徒歩4分 (約260m) くすりセイジョー深沢店 徒歩6分 (約440m) 世田谷区立等々力小学校 徒歩8分 (約570m) 深沢一丁目緑地 徒歩9分 (約710m) サミットストア深沢不動前店 徒歩10分 (約770m) 世田谷区東深沢中学校 徒歩10分 (約780m) ナオミ保育園 徒歩12分 (約920m) セブンイレブン世田谷日体大店 徒歩14分 (約1080m) |
||
| 備考 | |||
| 物件番号 | 4676486 | 取引態様 | 媒介 |












◆生活同線の整う周辺環境もあわせてご案内いたします♪
◆お気軽にお問い合わせください♪